Komplettering till AMI
Anslutning, Mätning, Installation.
1.5 Anmälan till nätägaren – föranmälan/färdiganmälan
Föranmälan
Dessa elarbeten är föranmälanspliktiga:
Tillfällig servis (tillfällig anslutning vid byggnation, tivoli, marknad mm.).
Ny eller ändrad servis (permanent servis eller servisändring av befintlig).
Säkringsändring (förändring av mätarsäkring, servissäkring och effektökning/minskning).
När du ansluter anläggningar för småskalig elproduktion till elnätet (så som sol- vind- vatten- eller gaskraftverk, energilager, kraftvärme eller reservkraft).
Installation av inmatningsenhet för mobila reservkraftaggregat.
All förändring och/eller utökning av produktionsanläggning.
Hur går jag tillväga?
För- och färdiganmälan görs på Installatörswebben där du som auktoriserad elinstallatör kan registrera ditt ärende. När ditt ärende är registrerat kommer du att få en bekräftelse via mail, efter detta kan du följa ärendet via sidan.
Nya hålltider för ärenden från 1 september 2021
Varberg Energi kommer att sjösätta en hel del förändringar vad gäller hålltider för ärenden. De nya tidsgränserna kommer att tillämpas utan undantag och syftar till att kunderna tidsmässigt ska få en rättvis behandling och att Varberg Energi får rimlig tid att genomföra projekten.
För att kunna säkerställa leverans till slutdatum inför Varberg Energi gäller nedan angivna ledtider från och med 1 september 2021. Inom område med befintligt elnät, och där kapacitet finns, ska föranmälan/beställning vara oss tillhanda enligt följande;
I de fall offert har begärts ska den av kunden påskrivna offerten bifogas i anmälan på hemsidan för föranmälan.
Föranmälan avseende nyanslutning eller servisändring ska alltid bifogas en nybyggnadskarta eller likvärdig karta/ritning.
Anmälan om flerfamiljsbostad ska bifogas lista över mätarplatsers märkning.
Föranmälan avseende produktionsanläggning ska bifogas påskriven bilaga; ”Föranmälan produktion typ A”.
Större ändrade förutsättningar under projektets gång innebär att projekteringen får göras om, och kan då betyda att projekttiden förlängs.
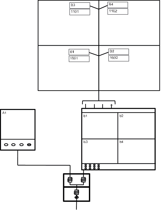
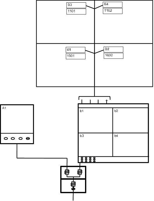
3.2 Märkning
Nedanstående märkning av anläggningen gäller vid nybyggnation eller där märkning saknas.
Vid utökning av befintlig installation ska det tidigare tillämpade märkningssystemet användas. Innan mätarmontage och idrifttagning skall samtlig märkning vara klar enligt nedanstående exempel.
